FS Homes - EN
2017-10-13-slideshow-link-to-contact
What Kind of house do you want to live in?
Feel the house you want with us and Taste the house designed from us to
achieve what you would like because we are serious about house designs.
Awesome Projects
Finding out what we could do to achieve your new dream house by meeting and talking with us today.
Happy Customers
We have got good comments from clients consistently.
Professional Background
Licensed Building Practitioner Designer / Residential Houses Specialist with 10+ Years experience.
About Forrest Stone
Forrest Stone Limited was created and formed at the beginning of year 2016 and with
the great team we have we are very lucky to keep shining in NZ building industry year by year.
Meet The Team
Our Team is formed by 7 Max fun people with creative minds and
passion to house design, just like a generator with unlimited
source of power keep generating good designs.
Rocky
Leader, Runner and Creator
Sophia
Double Major Excellent Admin officer
Anna
Supervisor, Senior architecture designer and draftswoman
Cathy
Senior architecture designer and draftswoman
Bessie
Talented Architecture Designer and draftswoman
Manny
Talented Architecture Designer and draftsman
Talented Person to join the team soon!
We are looking for talented designer to join the team soon !
Butter
Strong Handsome Boy with kind heart to keep a peaceful working environment for the team, highly professional tactical skills on all sorts of missions
What clients said about projects done by us?
Some of Clients would like to provide comments on our works and services
Ryamat

Client was from Trademe ad previous and spoke highly to our services.

Mops

Clients from Sandringham and we have done an existing house renovation for them

John Doe

Really apologized to not have this client name correctly due to comment made from trademe a long time ago, so have to call him John Doe.

Ramjane

Queenstown road project client spoke highly to our works

Our Amazing Works
We deal with all sorts of inquires about residential house projects such as existing house renovation and extension
new house on new land section, subdivision, life style, farm etc.
As well as some commercial and light industrial buildings and so on.
Chapel Road Development
30 Land sections at chapel road and killkenny drive junction, Dannemora. We proposed 15 types of houses to suit these 30 land sections. Currently they are all built and sold to home owners.
Armstrong Farm Drive
Existing land section belongs to quality subdivision project located at East Tamaki height, Point View, which known by the market as high class luxury residential living region.
Bleakhouse Road Project
Existing property on bleakhouse road performing renovation and extension to side of the house
Sunny Vale Development
66 Sungrove rise, Sunnyvale Waitakere city development was one of the most difficult projects we achieved. Lot 1, Lot 6 and Lot 8, 3 simple design 2 level houses, client was looking for quick money turn around.
Aorangi Place
Existing quality built plaster house to be completely demolished and removed on site, and proposed new house we designed for the client and the lovely lady just love it.
Danbury Drive Project
Danbury Drive project was one of the best and the most exciting renovation project we have done, and we are proud of the great outcome it brought to the home owner.
Hobsonville Scott Road Developments
Hobsonville Scott Road Developments are formed by 15/15A, 17/17A, 19/19A Scott Road sections. We are engaged by developers, individual clients to design different types of the house within the developing regions.
Sylvan Ave
Absolutely beauty and landmark to the cliff, when constriction work done, it is going to be able to be seen on left side cliff after Onewa road exit from No.1 Northern motor way toward Whangarei, Northland
Gracechurch Drive Project
Existing house belongs to country side living before unitary plan, and it's life style block, very nice condition solid plaster house.
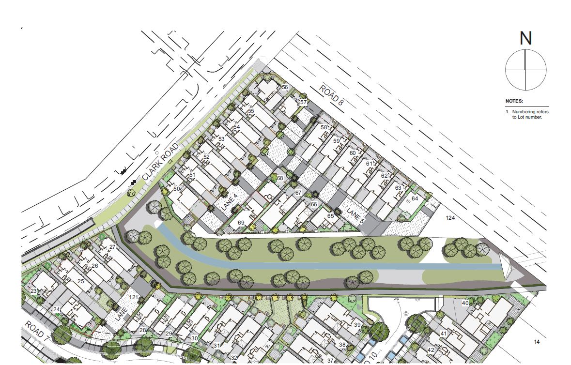
Clark Road Hobson Developments
Clark Road Hobson development is a very nice developing project again from Grande Meadow Development Limited, we are engaged to design and get consent approvals for couple of Lots new houses.
Gulf View Road
Clients are living in this property and hoping to remove the existing house completely and design a new house on the section. 3 kids in this family would make the living and family space so important in the proposed house.
Regia Close Project
Project located within Half moon bay region, great location and fantastic neighborhood surroundings. Clients wants a proper designed entry and deck living space.
Memorial Ave Mt Roskill
Exciting renovation project with full imagination of kids running around the existing house. Yes, you are right, we are converting this into a day care center.
Hedge Row Developments
Existing site with a house on it, it would be demolished and removed, proposed subdividing this section into 2 with 2 new houses on them.
Hobsonville point developments
Brand new sections at the subdivisions of 23 Scott road, clients are looking forward for a quality comfortable living house. Highly speak design to present.
East Coast Road Terrace House Developments
This is a leading type of design and development on East-coast road, 10 Terrace house units in 2 groups with 5 units each. Great sea view and convenient traffic to all major center of north shore such as Takapuna and Albany mall.

10 units are all designed for 3 levels with average 190m2 house area 4 bedrooms with stunning balcony toward sea view side. Not only full filled demands for all sort of people and family but also satisfying the local character for people who want to have city life as well as good view when wake up from bed.

Highly speak project and design !!
301 Flat Bush School
Excellent clients who purchased the best section from this development. They are considering a dream house for really long term living.

We are honored to be their architecture designer to share the joy of designing and building their dream home.
Te Atatu Road High Density Developments
Another Leading project and development on Te Atatu Road, limited space to introduce maximum developing value. 2 individual town houses plus 2 terrace house to the rear. 3 levels with special construction typology, fully concrete for level 1, normal timber framed with Ezpanel aero concrete finishes for external cladding to give a neat flat touch to the whole appearance.
Hillcrest Road Development
Great section from client, and would like to establish 3 groups of duplex type houses on site. Absolutely challenging the council rules and capacity of the section. Very excited project to proceed.
Ringwood Street High Density Developments
Existing land use consent granted under old district plan rules to subdivide 1 into 2, client approached us later on indicating Unitary plan could provide good chance for high density development, therefore we are honor to present subdivision 1 into 4. 4 individual well designed houses for the market demands.
Mellons Bay Road Developments
Quality living environment with quality demand to subdividing existing land section into 2 and wanting to have 2 brand new houses on site.
Blossom Lane High Density Developments
High density developments situated at Manurewa, to meet local housing demand.
We forged a 3 level, mid quality individual houses, 5 of them on this land section, maximized the value of the section, with the good team of consultants, we achieve this project and applied for approval within a reasonably short time period. Really excited during the design and documentation stages.
Flatbush School Road Development
Well developed Mixed housing suburban residential land sections with Forrest Stone Limited (FS Homes) own designs and built branding show home coming up soon, brand new idea of living with maximized spaces and new style to be admired. Please contact the office for more information.
Customize Special Sevices
What make us stand out among those competitors from the industry is
the custom services and the punctuality of the deadline time control ability
We have what we called a client's data base which allow our clients to login
view and download their drawings and
known up to date project progress anytime, anywhere.
New houses design
We could perform all sorts of new houses design to suite different clients' demand and living situations.
Subdivision Projects
We do take subdivisions projects as well, we work with a big group of building industry consultants with passion to assist different type of clients' demands.
Existing house renovation or extension
We take all sorts of existing houses renovation, modification, relocation and extension. We could solve all sorts of issues or difficulties for houses such as illegal built (COA), re-cladding, old house to farm land or other sections relocation etc.
Commercial and light industrial buildings
Apartment design, light industrial building such as barn, fish or dry foor production work shop etc.